La Team MAUGÉ vous propose un superbe terrain situé sur la Rue de la Chapelle à Diémoz. Avec une surface généreuse de 700 m², ce bien est une opportunité rare pour réaliser la maison de vos rêves ou pour un projet de loisir. Niché dans un cadre agréable et accessible, ce terrain bénéficie d’une situation idéale au cœur de la commune de Diémoz.
🔹️Disposition :
– Terrain de 700 m²
🔹️Caractéristiques du bien :
– Surface de 700m²
– Terrain viabilisé, avec cloture et pilier de portail
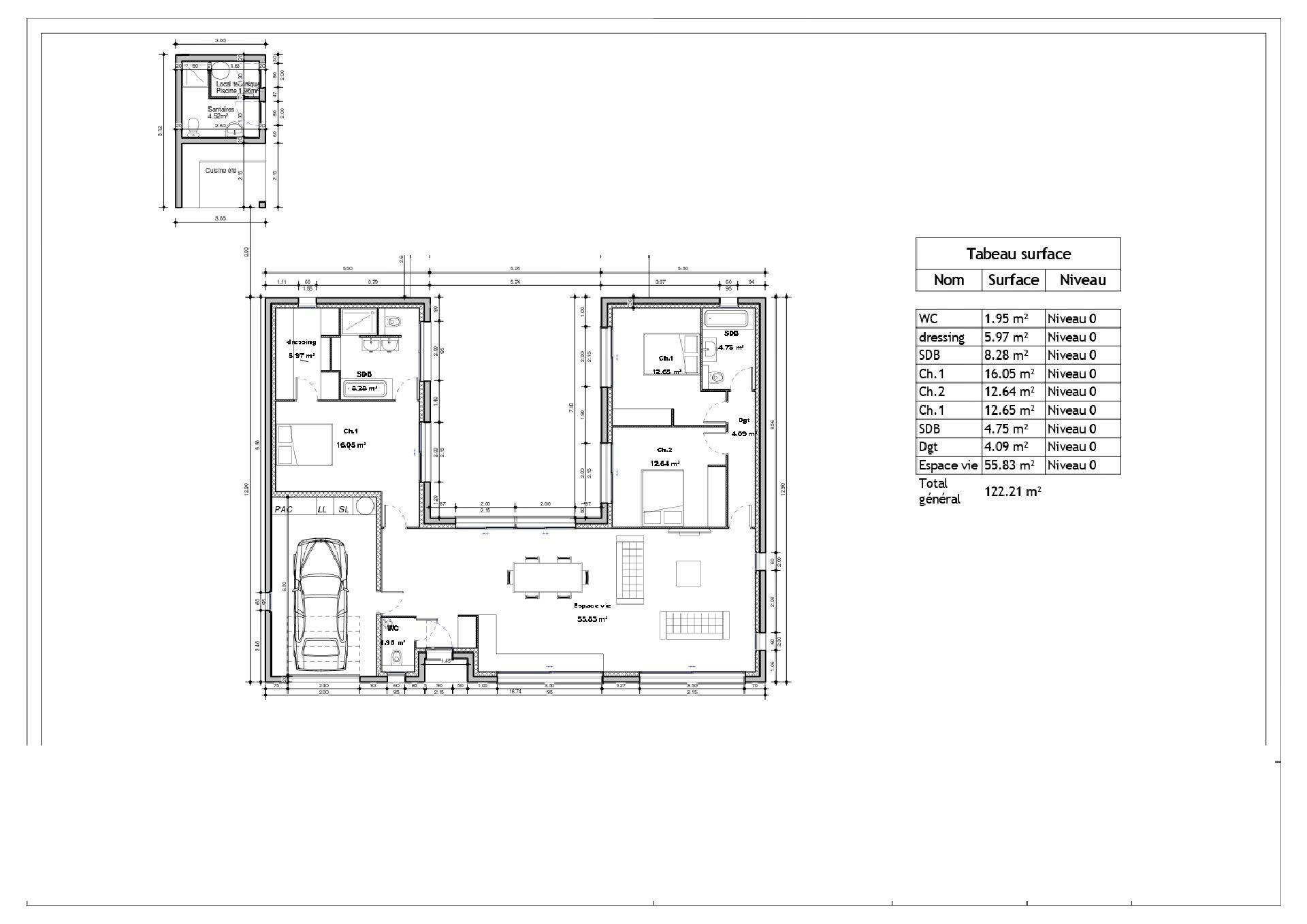
– Permis déposé et accepté pour une maison de 120m² en U
– Zone Ub
– 156m² de pleine terre
– Situation idéale à Diémoz
– Opportunité d’aménagement varié
– À proximité des écoles, parcs, et commerces locaux
– Les informations sur les risques auxquels ce bien est exposé sont disponibles sur le site Géorisques : www.georisques.gouv.fr
– Honoraires charge vendeur
Kathleen MEUNIER
Agent Commercial Immobilier
RSAC 895 038 594 délivré à Vienne
EI
MAUGÉ Immobilier
SASU au capital de 10.000 €
RCS n°893 649 889 délivré à Vienne
CPI n°38022021000000004 délivrée par la CCI Nord-Isère
À très vite !
La Team MAUGÉ Immobilier








